销售热线:17701896745/ 021-67680577
所有分类
电子地磅
|-电子地磅
|-电子磅秤
|-80吨地磅
|-防爆地磅秤
|-120吨地磅
|-便携式地磅
|-100吨电子地磅
|-平台秤
|-便携式移动地磅
|-地磅秤
电子汽车衡
|-电子汽车衡
|-数字式汽车地磅
|-汽车地磅
|-出口型汽车地磅
|-便携式汽车衡
|-汽车称重仪
|-便携式汽车地磅
|-移动式汽车衡
|-便携式轴重仪
|-超限超载治超汽车衡
电子台秤
|-电子台秤
|-防爆电子台秤
|-防水电子台秤
|-计重电子台秤
|-计数台秤
|-不锈钢台秤
|-100公斤台秤
|-电子台秤价格
|-带控制信号电子秤
|-60kg电子秤
防爆秤/便携式治超仪/限重超载仪
|-本安型防爆秤
|-隔爆型电子秤
|-防爆电子地磅
|-防爆吊秤
|-防爆电子桌秤
|-防爆电子台秤
|-防爆叉车秤
|-电子防爆秤
|-限重超载仪
|-便携式治超仪
不锈钢电子秤
|-不锈钢地磅
|-不锈钢电子秤
|-不锈钢台秤
|-不锈钢电子案秤
|-不锈钢钢瓶秤
|-不锈钢平台秤
|-不锈钢地牛秤
|-不锈钢电子磅秤
|-不锈钢地上衡
|-不锈钢防爆秤
动物秤/电子钢瓶秤/轮椅秤/透析称
|-动物秤
|-畜牧秤
|-牧畜秤
|-围栏秤
|-液氧钢瓶秤
|-电子轮椅秤
|-防爆电子钢瓶秤
|-透析秤
|-血透秤
|-电子钢瓶秤
电子叉车秤
|-液压叉车秤
|-电子叉车秤
|-电子地牛秤
|-不锈钢叉车秤
|-防爆叉车秤
|-电子秤价格
|-1吨电子叉车秤
|-2吨电子地牛秤
|-3吨叉车磅秤
|-电子堆高车
电子吊秤
|-电子吊钩秤
|-无线电子吊秤
|-耐高温电子吊秤
|-直视电子吊钩秤
|-1吨电子吊秤
|-2吨电子吊钩秤
|-3吨电子吊秤
|-5吨电子吊秤
|-10吨电子吊秤
|-电子吊秤价格
电子天平
|-电子天平
|-奥豪斯电子天平
|-美国华志电子天平
|-电子天平厂家
|-分析电子天平
|-水分测定仪
|-密度电子天平
|-万分之一电子天平
|-千分之一电子天平
|-百分之一电子天平
商业秤/电子桌秤/电子秤
|-电子秤
|-计数秤
|-计价秤
|-不锈钢桌秤
|-防爆桌秤
|-防水桌秤
|-计重电子桌秤
|-带控制电子桌秤
|-高精度电子秤
|-带报警功能电子秤
砝码
|-标准砝码
|-不锈钢砝码
|-天平砝码
|-铸铁砝码
|-锁型砝码
|-增砣砝码
|-挂钩砝码
|-定制砝码
|-F1F2级不锈钢砝码
|-E1E2级砝码
轴重秤/称重仪/电子衡器
|-称重模块
|-称重传感器
|-便携式称重仪
|-灌装秤
|-倒桶秤
|-轴重秤
|-汽车轴重仪
|-滚筒秤
|-轨道秤
|-装载机电子秤
网站首页
HOME
关于我们
ABOUT
产品中心
PRODUCTS
新闻动态
NEWS
促销活动
PROMOTIO
技术服务
TECNNICAI
招贤纳士
RECRUIT
联系我们
CONTACT
公司简介
荣誉资质
企业文化
成功案例
新闻中心
活动中心
热销产品
促销产品
技术文章
问题解答
说明书
合作商
招聘岗位
在线询价
联系方式
1
2
3
新闻中心
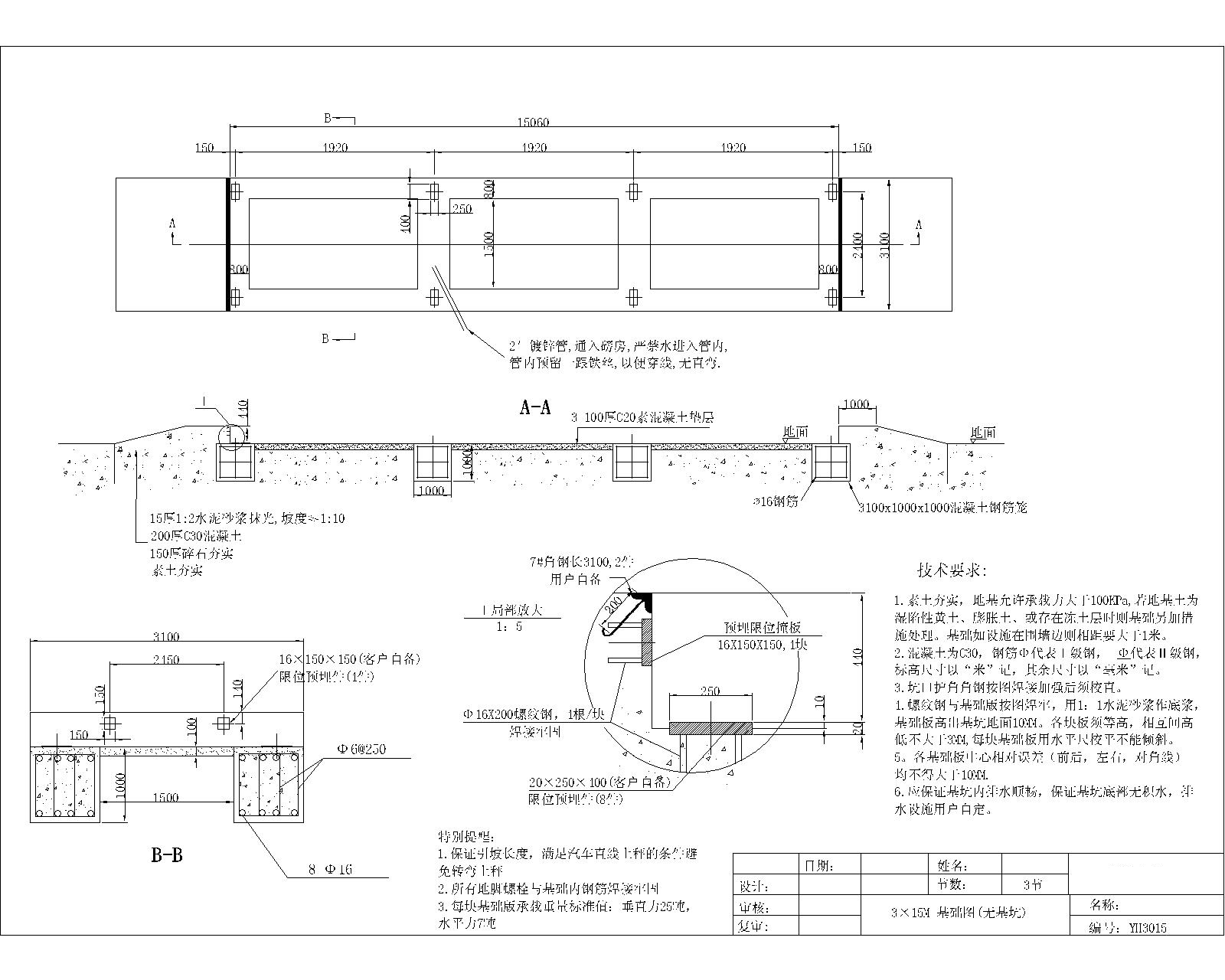
电子汽车衡的安装图纸介绍
电子汽车衡的安装图纸介绍
上海众渊**2019.01.11
电子汽车衡的安装图纸介绍
上一篇:
标准砝码**就在您身边
下一篇:
铸铁砝码标准砝码的包装如何做好
Copyright ® 2010-2023 http://www.zhongyuan1588.com Inc. All rights reserved. 上海九津电子衡器有限公司 版权所有
地址:上海市松江区沪亭路240弄26号 E-mail:1801406374@qq.com
手机:17701896745 销售热线:021-67680577
沪公网安备31011702000831号
沪ICP备15024551号-1
网站地图
关闭
客服一
客服二
客服三
在线询价
在线客服